Меню
Real Estate in Bulgaria
bg | en | ru |
bg | en | ru |
моб: +359 887 84 88 79
[email protected]

Permission for sale of a residential building in the regulation of the town Chernomorets

Price: 85 000 €
Permission for sale of a residential building in the regulation of the town Chernomorets
Permission for sale of a residential building in the regulation of the town Chernomorets
Permission for sale of a residential building in the regulation of the town Chernomorets

Property details

Ref. №: 974
Type of transaction
Property Type
Area
642.3 m²
Construction type
Bricks
Floor
2 from 2
Using for
Vacation property
Region
Burgas region
Populated location

Contact with us Hide form

To get a consultation Hide form

We offer for sale a permission of a residential building with a basement, a ground floor and two floors on a plot of land in the regulation of the town Chernomorets


The plot of land with size 859 sq.m is located just in a distance of 150 m from the central beach of the town Chernomorets.


There is a license for building of two buildings in this plot of land.

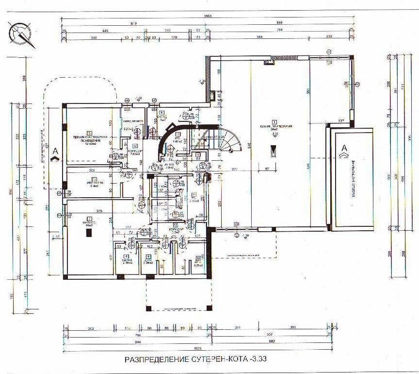
The building the permission for sale we offer has at its disposal an investment project and is two-storey, with a total built up area 642.3 sq.m.


The total built up area of a basement is 158.3 sq.m.

The total built up area of a ground floor is 142.4 sq.m.

The total built up area of a first floor is 180 sq.m.

The total built up area of a second floor is 161.6 sq.m.


On the basement there will are: premises for fitness with sauna, a bathroom, a story, a laundry, a kitchen with a dining room, terraces etc.

On the ground floor there will are: two rooms, two entrance halls, bathroom with a toilet, a reception.

On the first floor there will are: 6 rooms with a bathroom/toilet and terrace.

On the second floor there will are: one 1-bedroom apartment and 2 rooms with a bathroom/toilet and terrace.


The plot of land has at its disposal a electrical and water and sewerage supplies.


The building which will be built has an excellent investment possibility because the town of Chernomorets is one of the best resorts in a Sought Bulgarian coastal.


Chernomorets is located 25 kilometers south of Burgas and 8 kilometers away of Sozopol. It is an ancient place with a rich history, and was called St. Nikola in the past. Its location between Bourgas and Sozopol affords convenient access to either town for entertainment and nightlife. Due to its picturesque and rocky coastline, Chernomorets seems to be a perfect location for marine sports and other exciting experiences. The beach is suitable for both parents and children, and the water is warm and peaceful. Its unique location offers a beach on the serene north bay, and also beautiful slanting rocks.


BP Bulgarian Properties - property and real estate for sale in Bulgaria

Chernomorets is a little quiet Black Sea resort, beautifully situated at the Bulgarian southern seaside. It is artistically spotted on the lovely peninsula, in the bay of Bourgas.
The town is located just 23 km south from Bourgas, and 8 km away from the famous ancient old town of Sozopol and Duni resort.

It has rich history, dating back to ancient times, when Chernomorets used to be called St. Nicola.

In close vicinity to the town, “The Garden”, “The Golden Fish” and “Chernomorets” camping sites are situated. The beaches are well hidden from the wind between rocky ravine, overgrown with nice bushes and young trees. All of the beaches are suitable for bathing, sun- bathing, and offer a lot of fun and entertainment.

The sea resort has four nice sandy beaches, each of them charming and specific for its own characteristics. If you want to escape from the crowded beaches, you will be definitely satisfied with the clean and peaceful beaches of Chernomorets. If you are the adventurous type of person, you will not be disappointed either, because Chernomorets is the perfect place for surfing and other water sports.

The unique King’s Beach, which spreads out to the south is suitable for water- skiing, fishing, water- jumping, sea trips, and even nudism.

                                                                                           chernomorets 1.jpg

From May till September the average temperature of the water is about 22 degrees Celsius, which makes it good for bathing until late October. At the same time the summer heat is easily endured, because of the fresh sea breeze.

chernomorets 2.jpg

Chernomorets offers plenty of places for accommodation and entertainment- modern houses and villa sites, small hotels, cozy cafes and restaurants for your perfect holiday. 

                                                                                                                                                          chernomorets 6.jpg

the north there are marvelous rock juts, to the south - a river and canes of human size. There is an old church, a camping site called Chernomorets, rest homes and a lot of private lodgings.

 chernomorets 7.jpg

chernomorets 8.jpg

 

       

T

                                                                                                                                                                                                             

You already have purchased your property in Bulgaria. Our company collaborates with some of the best Bulgarian and foreign furniture producers. This gives possibility everyone of our clients who has purchased your property by us to find their unique furniture.

The companies we work design and offer various individual projects, furnishing packages and interior design solutions covering the whole process, namely:
• drawing up an initial interior design concept taking into consideration the investor’s ideas and style of the development;
• design and selection of the furniture;
• furniture production;
• organization of the deliveries and fittings;
• monitor the execution of the project: supervise the subcontractors, keep the deadlines, make corrections in case of inaccuracies.

We help you choose the furniture that will best fit your apartments – both as style and budget.

Our clients will get:
• Overall interior design concept and 3D visualization.
• Accurate planning of the spaces.
• Interior architectural design.
• Materials and colors as per the client’s wishes.
• Design of electrical wiring, lighting and audio synchronization.
• Selection of furniture and accessories.
• Individual furniture design.
• Accurate evaluation of the project.
• Precise management of the whole project.
• Key-turn service.

 

z1.jpg

z10.jpg

z12.jpg

z13.jpg

z15.jpg

z16.jpg

z18.jpg

z2.jpg

z5.jpg

z6.jpg

z7.jpg

 

Map of the area

Contacts

+359 887 84 88 79 +359 56 82 83 83
[email protected]
BP-Bulgaria+359 887 84 88 79
Mon-Fri: 08.30 - 19.30; Sat-Sun: rest days

Property details

Ref. №: 974
Type of transaction
Property Type
Area
642.3 m²
Construction type
Bricks
Floor
2 from 2
Using for
Vacation property
Region
Burgas region
Populated location

Contact with us Hide form

To get a consultation Hide form

Map of the area

Contacts

+359 887 84 88 79 +359 56 82 83 83
[email protected]
BP-Bulgaria+359 887 84 88 79
Mon-Fri: 08.30 - 19.30; Sat-Sun: rest days
 
 
bg | en | ru |